Haus K

Aufgabenstellung war es ein vorgefertigtes Holzhaus für eine junge vierköpfige Familie mit sehr geringem Budget zu verwirklichen, sich jedoch durch ein klares architektonisches Konzept im ignoranten Umfeld von Billigstbietern zu behaupten. Die Nettoherstellungskosten des 150m² großen Niedrig-Energie-Hauses betrugen € 200.000.
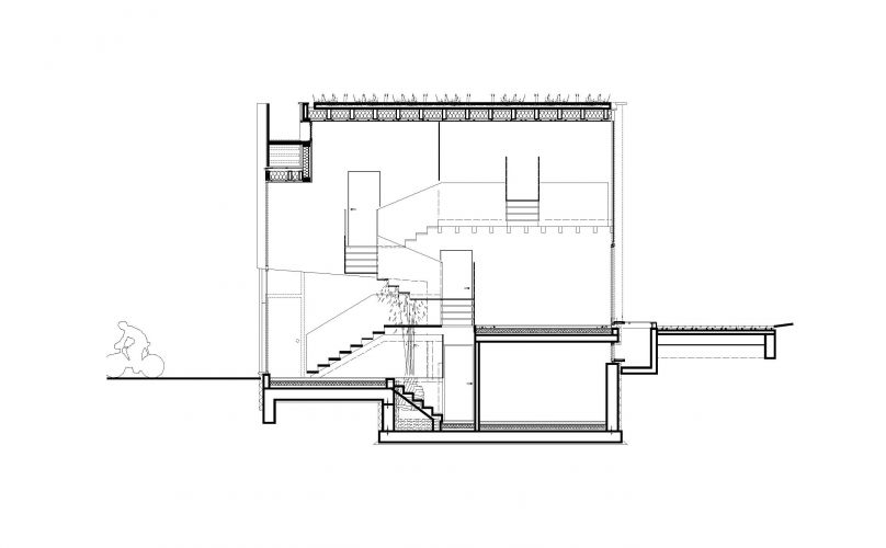
Ein kompakter Baukörper von 10x10 Metern Seitenlänge schafft durch die Anordnung der verschiedenen Räume auf viertelgeschoßigen splitlevels eine räumlich interessante Situation, die man über eine zentrale, frei abgehängte Treppe durchwandern kann. Der Weg beginnt, durch das natürliche Gelände bedingt, einen halben Stock tiefer als der südseitige Garten, erschließt die Zimmer, führt weiter durchs Haus in den oben gelegenen offenen Essraum und in die Wohnebene und weiter auf die vier verschieden Dachebenen. Die Oberflächen sind von Lärchenholz, das konstruktiv eingesetzt wurde und durch den dunklen Schieferboden bestimmt.

Plans / Sketches

Data

  • City Igls
  • State Tirol
  • Category Private
  • Floor Space 150 m²
  • Client privat
  • Structural Engineers Reinhard Donnabauer
  • Print Publications Hise | Po stopnicah do ... zvezd | dec 2005
    AIT | Im einviertel Takt | oct. 2004
  • Cost 200.000 eur
  • Finished 2003
  • Photographers Lukas Schaller

Web Publications

Haus K

Related Projects