MPreis Wiesing

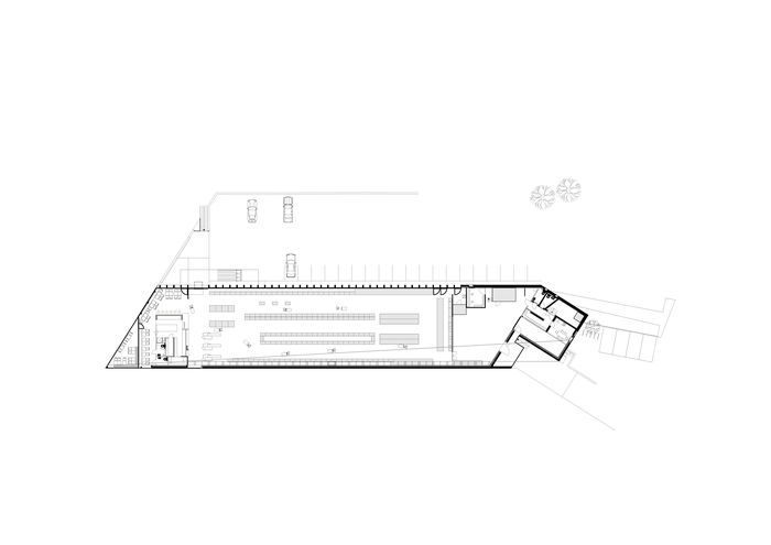
Once again the local Supermarket chain Mpreis prooves that shopping for the daily needs does not have to be a boring experience and retail architecture can make the exception with a brand new outlet in Wiesing, Austria. Offering a public meeting point for locals and tourists on their way to Zillertal or the lake Achensee a coffee shop is situated at the entrance adjacent to the west-facing sun terrace providing views of the village and the surrounding landscape. Like a long stretched wedge the building is laid out into the landscape. The south the facade is kept close but is defined by the fair-faced concrete wall exposing the local gravel used in the concrete mixture through washing the finished surface just after being cast. In the North the facade consists of prefabricated-concrete louvers cast in multiplex formwork providing shade to the frameless glass facade thus supporting the roof above. The free-spanning timber-structure roof is folded diagonally in the space leading a distortion of the perspective view inside as well as from outside of the building. The softly slopping fields are mirrored in the gently falling roofline. The heating system works with a heat pump used to avoid the need for fossil fuel. The heat pump is supplied by the expelled air of the refrigeration units needed for cooling the delicatessen section of the market. Enhanced through natural ventilation and the use of natural day light from the North and the shaded sky light along the south facing wall energy consumption could be reduced by over 50% compared to average supermarket projects resulting in a positive impact on the environment. Furthermore this market gives the consumer the chance to reduce car use and get the daily shopping done locally.

Plans / Sketches

Data

  • City Wiesing
  • State Tirol
  • Category Public
  • Floor Space 1080 m²
  • Client Mpreis Warenvertriebs GmbH
  • Structural Engineers Alfred Brunnsteiner
  • Further Consultants Gebäudetechnik mechanical engineer
    Moser und Partner
  • Finished 2010
  • Photographers Christian Flatscher

Web Publications


Related Projects